Life Magazine

£499,950 Sold Subject to Contract

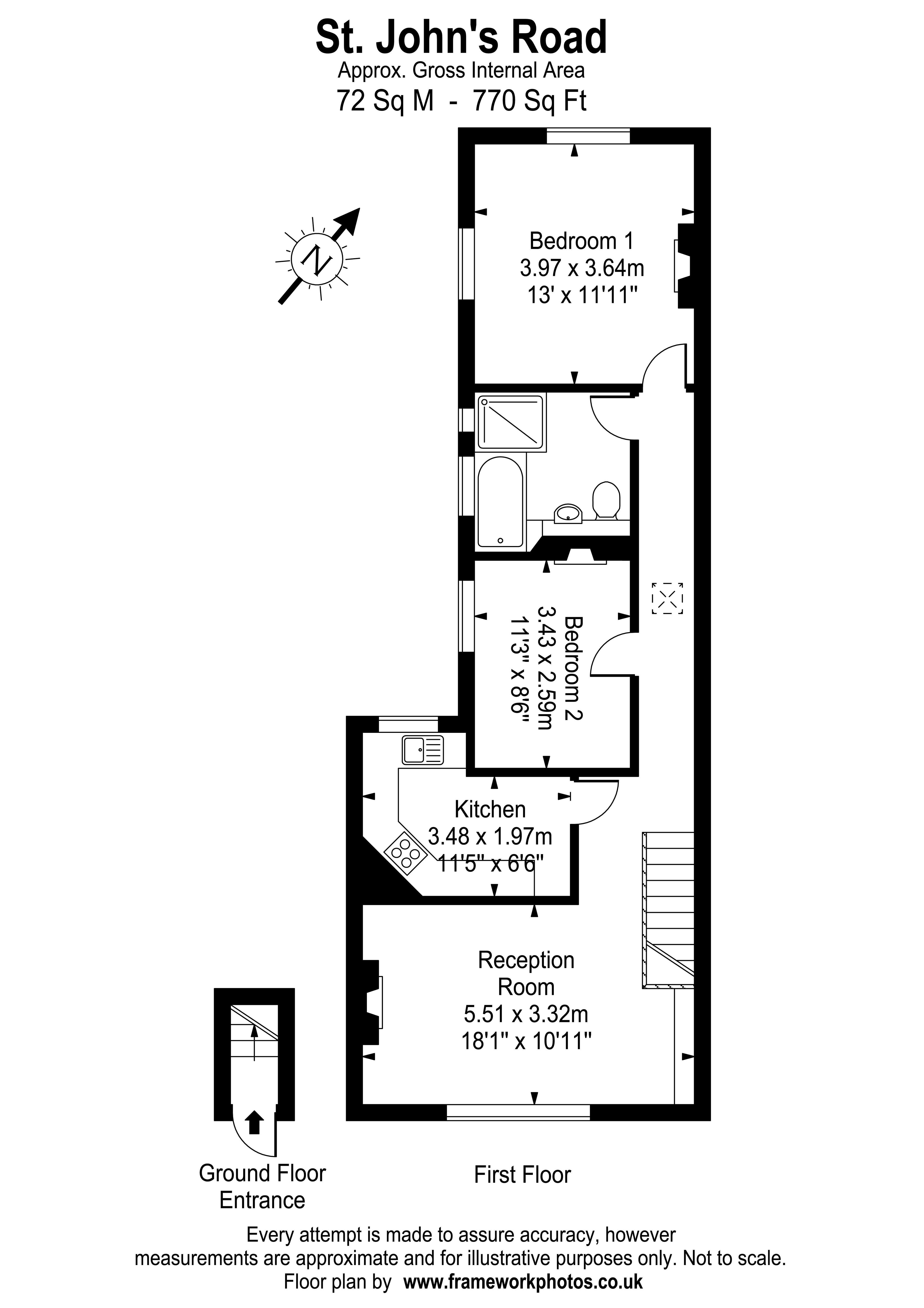
St. Johns Road, Hampton Wick, Kingston Upon Thames

2 1 1


A characterful two bedroom, first (top) floor, Edwardian maisonette with easy access to Hampton Wick station, Royal Parks, and the amenities of Kingston including John Lewis department store and beautiful Riverside.

This attractive period property is presented in excellent decorative order, and with many improvements by the sellers during their ownership.  It occupies a favourable end of terrace position, with its own private front door at ground level.  The accommodation is full of character and well planned with a comfortable floor area extending to 770 sq. ft / 72 sq. m.  Once you enter the flat there is good feeling of space with a galleried landing enjoying an open-plan feel to the hallway and reception room.  The front reception is a bright space due to a large window, and there is also a lovely exposed brick fireplace with wood burner.   Adjacent to the living room is a modern kitchen with wood worktop, space for all necessary appliances, and the warmth of underfloor heating.  A good size hallway provides an attic skylight as well as a feature brick archway.  At the end of the hallway there is a double aspect master bedroom with large feature fireplace and timber mantle.  There is a further double with pretty fireplace including a built-in desk / work station.  The bathroom is a particularly good size fitted with a modern suite and tiling, and completely remodelled to include large step-in shower 'wet room style' with rain shower, separate bath, W.C and sink.     

The property benefits from GCH operated by an updated combi-boiler (located in the loft) as well as quality wood framed double glazed sash windows (Kitchen and both bedrooms)  Lastly a particularly notable feature is the large boarded loft - with a timber fold-down ladder accessible from the main living room.  This really does provide superb additional storage.  EPC D.

Location:  St John's Road is located right in the heart of Hampton Wick, only moments from the station (35 mins to Waterloo) thriving Kingston Riverside and Home Park with many open acres of Royal Park Land connecting Hampton Court Palace.  Local amenities, restaurants, and shopping are plentiful as are excellent schools and nurseries and nearby allotments, accessed from Church Grove for those interested in growing their own.

Tenure:  Long lease of approx. 113 years remaining.

Follow The Property Jungle Library on Facebook Follow The Property Jungle Library on Instagram