Life Magazine

£489,950 Sold Subject to Contract

Tufton Gardens, West Molesey

4 1 1

A three / four bedroom townhouse with driveway parking and integral garage, forming part of the popular Hurst Park development situated on the favourable 'River side' of Hurst Road.

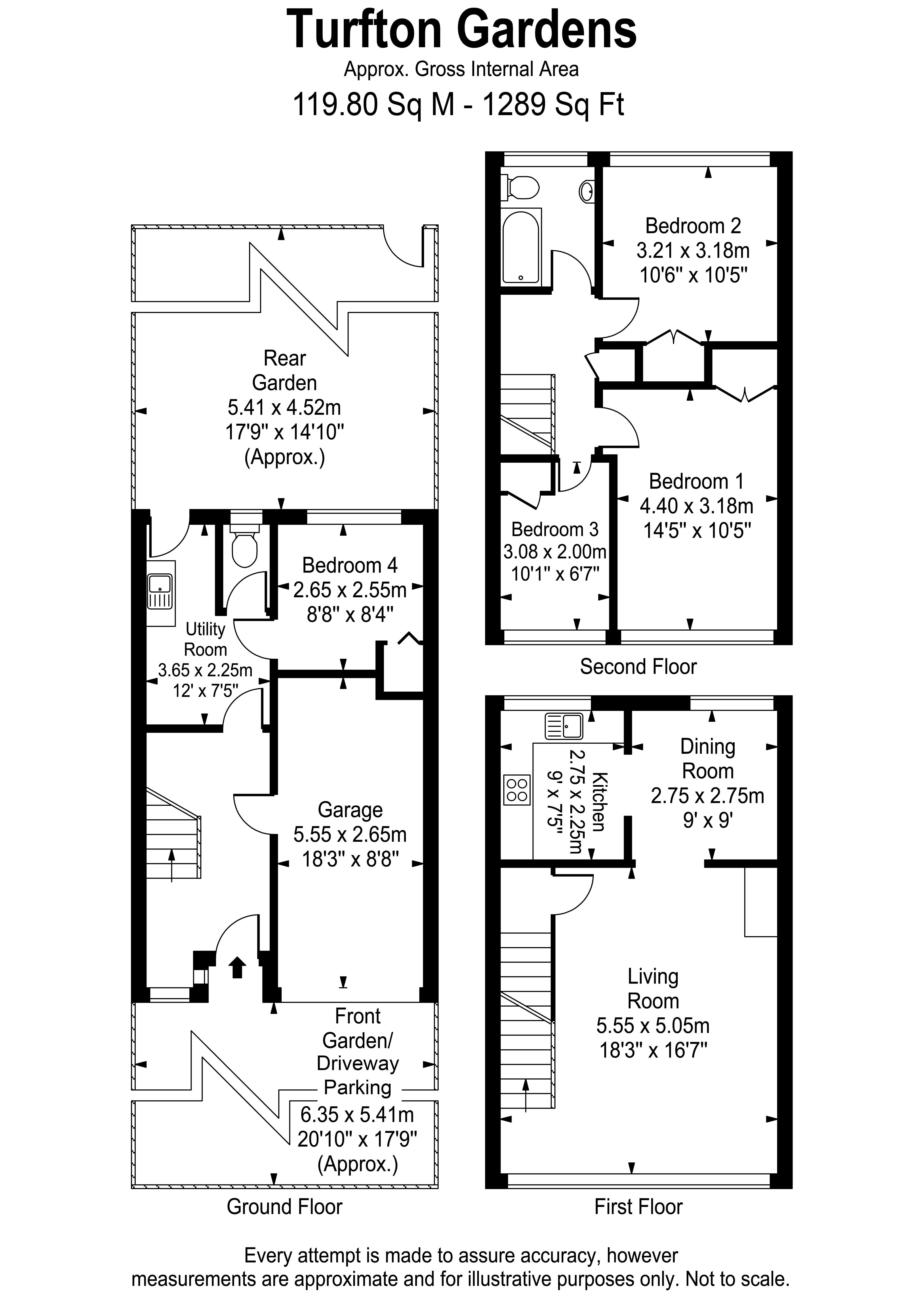
The property provides flexible living space with accommodation spread across three floors.  It is well presented throughout with all rooms on the top floor being recently decorated.  Windows are double glazed, and the old gas warm air heating system has been replaced with a modern condensing combination boiler. 

The ground floor comprises a good size entrance hall with under-stairs cupboard and internal door to garage.  To the rear, overlooking the garden, is a room currently set up a fourth bedroom but instead would make a nice office or play room. Next door is a separate W.C, and useful utility room with door to garden. 

The first floor consists of a partial plan arrangement with a bright and spacious front aspect sitting room featuring a large expanse of windows, as well as an enclosed staircase with glazed wall, rising to the top floor.  There is a double opening to the dining area, which in turn, is open to a modern fitted kitchen. 

The top floor provides landing with airing cupboard and hatch giving access the loft. There are three good bedrooms (two doubles and a single) all with built-in wardrobes / storage, all being served by the family bathroom with white suite and tiling.  

Externally, the patio garden is well stocked with plants and shrubs and there is gated access leading to the communal gardens which is popular for families with young children.

Service charge:  An annual service charge of £245 is payable to Hurst Riverside Lands Limited for upkeep of well maintained communal gardens and walkways.   

Follow The Property Jungle Library on Facebook Follow The Property Jungle Library on Instagram