Life Magazine

£800,000 Sold Subject to Contract

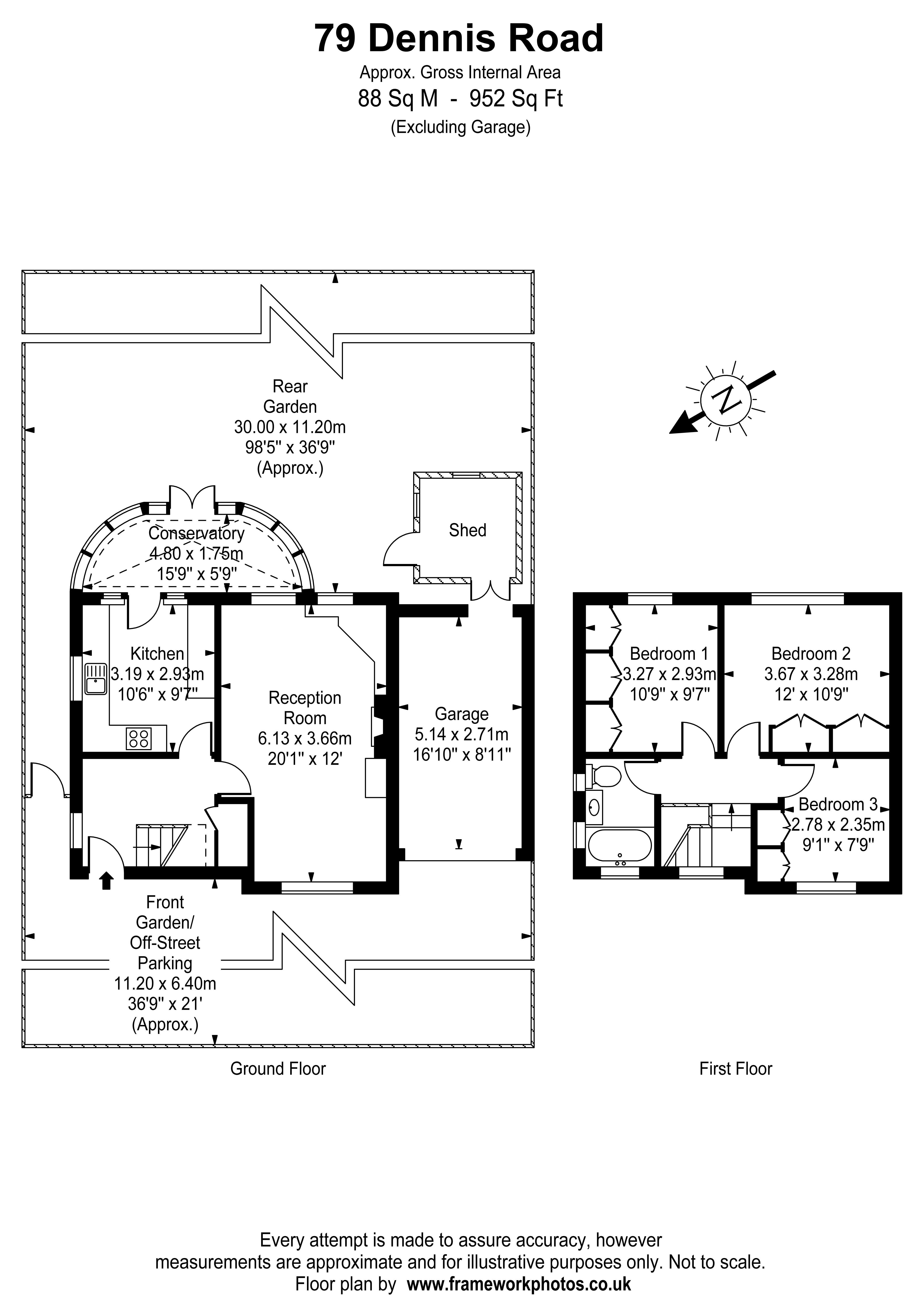
Dennis Road, East Molesey

4 2 2

A 1960's stand-alone detached house, situated in a quiet East Molesey 'side road', requiring comprehensive modernisation yet benefitting from a good size rear garden (approx. 100 feet in depth) enabling plenty of scope to enhance and improve.

Miles & Bird are delighted to offer for sale a natural, two story, three bedroom detached property with own driveway to garage. The ground floor comprises a good size entrance hall with feature front elevation window, kitchen, conservatory (needs removing) and double aspect lounge. The first floor provides landing, three bedrooms and bathroom.

Externally the front garden measures 11.2 x 6.4m (36' 9" x 20') with driveway parking leading to a garage with up and over door. It should be noted that due to the extent of growth and vegetation we were unable to accurately measure this area, and therefore it is approximately measured at 30 x 11.2m (98' 5" x 36' 9").

There is considerable potential to extend, enlarge and improve this property. We have consulted with a local architect who has produced a Subject to Planning Permission (STPP) appraisal. Their report which is available upon request. EPC E   

Location:  Dennis Road is a sought-after residential side road in East Molesey village, within easy access of local shops and high performing schools. Bridge Road (referred to as Hampton Court Village) with its numerous independent cafés, restaurants, boutiques and antique shops are all within easy walking distance (0.7miles), as is Hampton Court Station (TFL ZONE 6, connecting to London Waterloo). Bus terminals at Hampton Court Station / Green connects Heathrow, Twickenham, Richmond and Kew, Kingston and Staines.  Kingston-Upon-Thames with its renowned and diverse shopping facilities is also easily accessible.  Molesey is also serviced by a library as well as health/fitness, rowing and cricket clubs amongst others.

Follow The Property Jungle Library on Facebook Follow The Property Jungle Library on Instagram