Life Magazine

£515,000 Sold Subject to Contract

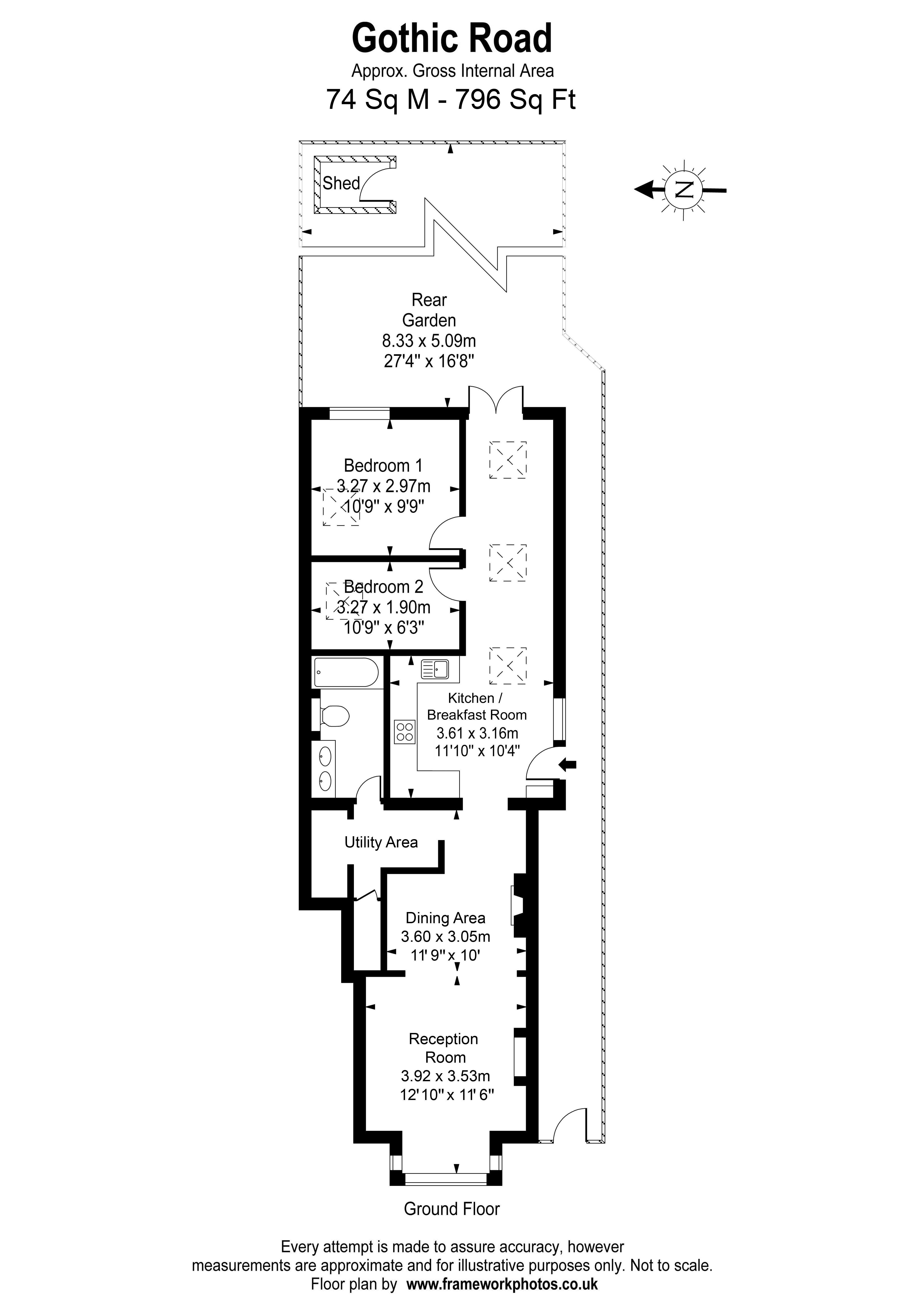
Gothic Road, Twickenham

2 1 1

Key Features

  • Victorian Conversion
  • Detached building
  • Extended ground floor flat
  • Private rear garden
  • Kitchen/breakfast room
  • Wood floors
  • U/Floor heating bathroom
  • Share of Freehold | 999 year lease
  • Double reception room
  • Period fireplace

A two bedroom ground floor garden flat tucked away in a side road location in a popular part of Twickenham near The Green.

This charming period property occupies the whole of the ground floor of an attractive Victorian detached building, consisting of only two flats total, both enjoying their own private entrances. The ground floor flat has been extended to the rear to provide direct access to a lovely, hard landscaped enclosed private rear garden with patio and timber storage shed. 

Side access leads to a private flat door opening into the kitchen / breakfast room.  The property is very good size overall of some 74 sqm, nearly 800 sqft. In our opinion the property offers a really interesting layout with good definition of usable open-plan living space and with excellent natural night.   

The property offers double glazing and gas central heating throughout, wooden floors to the kitchen/breakfast room, and comprises of an open plan living and dining room with bay window to living area and ornate feature fireplace to the dining area. In addition, there is an inner hallway with a highly useful utility / storage area, leading to a modern bathroom complete with underfloor heating. There is an open hallway off the kitchen/breakfast room with three large Velux windows, giving access to two bedrooms — the main bedroom enjoying easterly aspect, overlooking the private rear garden.  EPC D.

Tenure: Share of Freehold. 999 year lease effective Feb 2011.  

Location: Gothic Road links through to Trafalgar Road, where some of finest Georgian architecture is found in the whole area.  Passing Twickenham Green, the town centre is within easy reach, where you can find shops, cafes, restaurants and pubs. From here, one can enjoy a riverside walk all the way to Richmond and beyond, passing beautiful Marble Hill Park and its historic buildings. Everyday shops are located nearby on Staines Road. There are several excellent schools in the immediate vicinity, as well as superb transport links with Strawberry Hill train station approximately 0.7 miles away & Twickenham station approximately 1.4 miles with its fast service to Waterloo (19 mins). Frequent bus services every five mins are close by.  For car drivers there is easy access to the M3 and M25 motorways. 

Follow The Property Jungle Library on Facebook Follow The Property Jungle Library on Instagram