Life Magazine

£850,000 Sold Subject to Contract

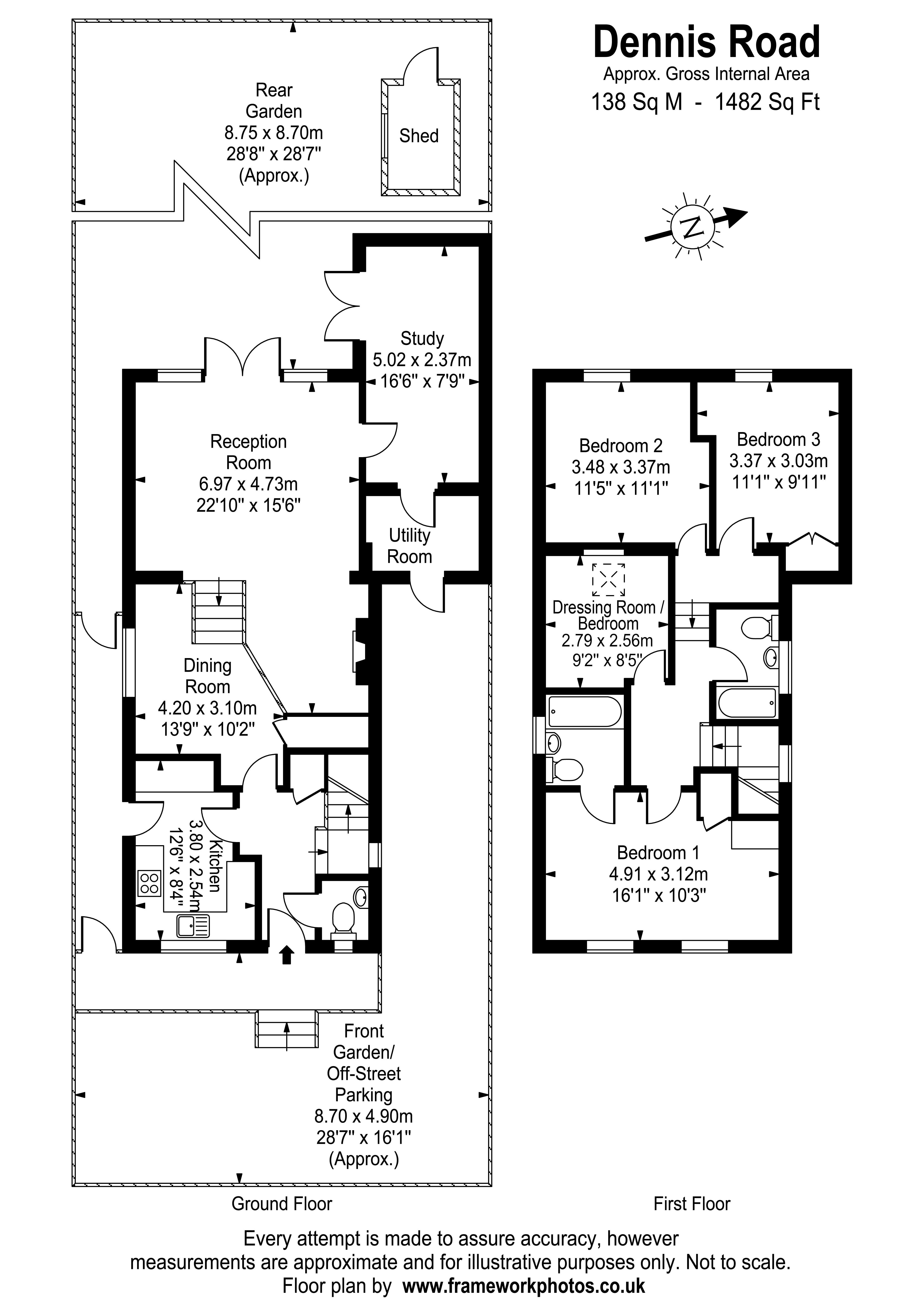
Dennis Road, East Molesey

4 2 2

Miles and Bird Estate Agents are proud to have sold this extended three / four bedroom, two bathroom, detached property situated in a highly regarded East Molesey Village side road, benefitting from off-street parking for two cars.

A stand-alone two storey detached property originally constructed in the early 1970's and further extended with double storey addition to the rear in late 1980's. The property has gas fired central heating and double glazing, but there is plenty of scope to enhance, remodel and generally improve the property internally.

The accommodation comprises entrance hall with coats cupboard. Immediately on your left is a front aspect kitchen and opposite this is a separate guest W.C with toilet and wash basin. The rear of the house provides interesting, split-level accommodation, with vaulted ceiling comprising raised dining space overlooking a mezzanine study / reception area with feature fireplace, and this in turn opens up into a large main sitting room with double doors to the garden. There is a further reception room which would make a nice home office / therapy room overlooking the garden. This room opens into a utility room with external door to a side courtyard returning to the front of the house. There is space to extend this area if necessary, perhaps to make a self-contained annexe.  Naturally this work would require local authority consent. 

Upstairs a front aspect main bedroom benefits from an en-suite bathroom / shower room.  There are two further bedrooms to the rear supported by a small bathroom.  There is an additional room opposite the main bedroom, currently set-up as a large dressing room with skylight window. 

Externally, an established garden rear garden is well planted and mainly hard landscaped with useful side access.  The front has steps leading up to a front veranda with railings and provides hard standings for two cars. EPC D.

Location: Dennis Road is a quiet residential side street within short walking distance of East Molesey High Street, Hampton Court Railway Station & Village.  The local area has an abundance of local amenities, enjoys superb schooling options as well as many open acres of parkland found in Hurst Park, two Royal Parks (Bushy and Home) and Molesey Heath nature reserve.  

 

Follow The Property Jungle Library on Facebook Follow The Property Jungle Library on Instagram