Life Magazine

£925,000 For Sale

Nightingale Road, West Molesey

3 2 2

A classic Victorian bay-fronted three bedroom, two bathroom, semi-detached family home with private off-street parking and an established sunny aspect 50ft rear garden.  

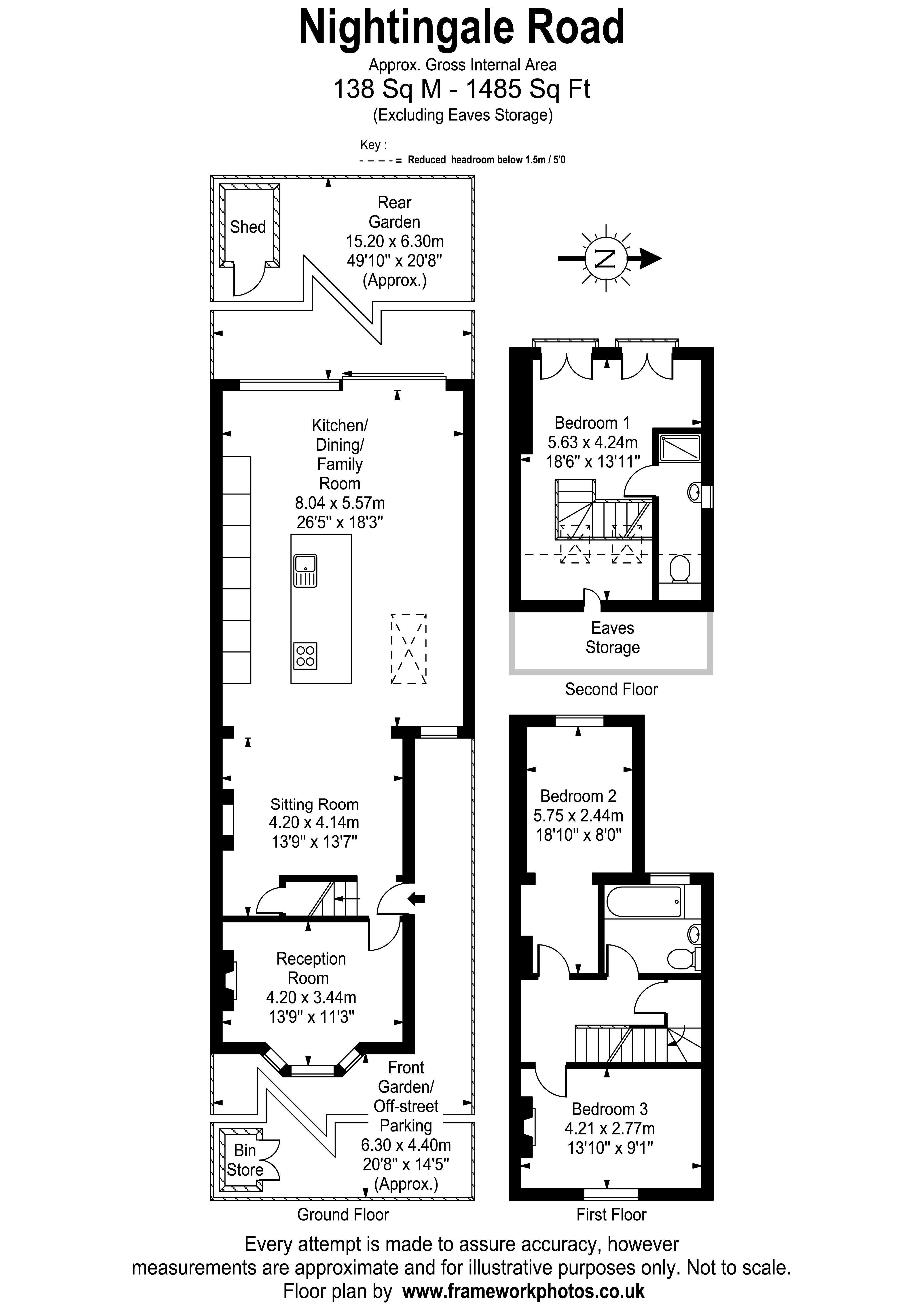
Miles & Bird are excited to offer this lovely family home which has been comprehensively extended and refurbished.  It really does offer the very best of charming period detail that effortlessly blends into modern contemporary design.  One cannot help but be captivated by the impressive open plan kitchen / dining / family room extension measuring a sizeable 26' 5" x 18' 3" / 8.04 x 5.57m.  This bright open space is complimented by under floor heating, large island unit adjacent to dining area with bespoke glazing and roof-light, and beyond that, a family snug/sitting area over looking the garden.  This inviting family area is strategically placed to absorb the benefits of a wood burner as well as full views of a flourishing garden with full width 'narrow profile' sliding doors opening straight out to the 'same-level' garden terrace.      

There are two further reception rooms both laid with wood flooring; a middle room open to the kitchen, with recessed under stair area complete with fitted shelving, whilst a separate front TV room features a bay window, coving, wall-lights to alcoves and a second wood burner.     

Upstairs, the first floor landing gives way to two good size bedrooms.  The front room has a fitted double glazed sash style window with shutters as well as a pretty ornamental feature fireplace, whilst the rear bedroom forms a double storey extension with walk-through dressing area.  A well appointed main family bathroom completes this floor.  The second floor provides the main/principle bedroom with double-doors opening to a Juliette-balcony and its own en-suite shower room.  There is access to eaves storage.   

Externally, there is flag-stone driveway with off-street parking to the front.  A timber bike store with sedum roof will be staying.  An established (abt. 50ft) rear garden enjoys a sunny west facing aspect, and is extensively planted with mature architectural plants.  A large terrace sits next to the house – perfect BBQ area for family gatherings – with outside wall-lights, and water tap.  A timber tool shed is located at the far end.  EPC rating 'C'.

Location:  Nightingale Road is a popular residential tree-lined road in the heart of Molesey.  The architecture is predominantly similar Victorian housing stock which makes for an attractive street scene.  East Molesey's main high street (Walton Road) is nearby with superb local amenities, shops and restaurants with Tesco supermarket (abt. 0.2 miles). Bridge Road, known locally as Hampton Court Village is also home to quality independent retailers, cafes and restaurants, as well as Hampton Court Station (0.8 miles away) providing regular trains into London Waterloo from 33 minutes.  Direct road links via the nearby A3 to the M3 and M25 make for easy access to London’s airports.  East Molesey boasts some fantastic recreation facilities including East Molesey Cricket Club and Molesey Boat Club, both situated on the River Thames.  Historic Hampton Court Palace attracts visitors from around the world, and Bushy Park and Hurst Park offers beautiful scenery for walking, running and cycling.  Elmbridge Borough is also popular with families as it provides superb schooling options, including nearby St. Albans Catholic Primary School awarded best performing junior school by surrey county council in recent years.   

 

Follow The Property Jungle Library on Facebook Follow The Property Jungle Library on Instagram