Life Magazine

£615,000 Sold Subject to Contract

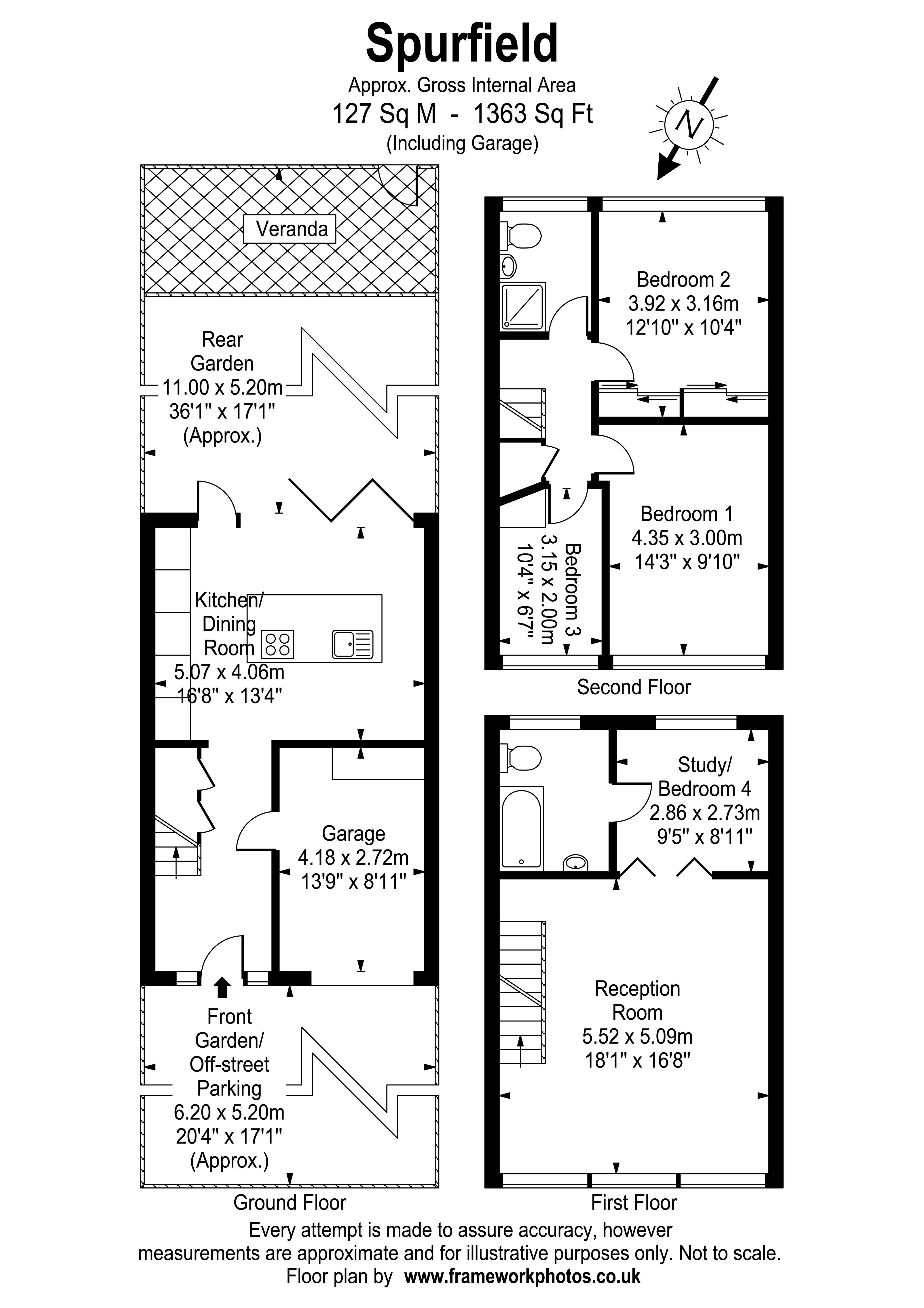
Spurfield, Hurst Park, West Molesey

4 1 2

Key Features

  • Popular Hurst Park
  • Modernised house
  • Four bedrooms
  • Two bathrooms
  • Kitchen/diner inc. bifold doors
  • Integral garage
  • Driveway parking
  • South facing garden
  • New roof 2012
  • D/G windows & GCH

A modernised three / four bedroom, two bathroom, townhouse situated on the ever popular Hurst Park development with south facing garden and driveway parking.

The current owners have resided in the property for over a decade and have made a number improvements in recent years. The main work involved opening up the rear of the ground floor to provide an impressive fully equipped kitchen/diner with island unit and a full expanse of 'powder coated aluminium' bi-fold doors giving superb views and access over the garden.  That work also involved relocation of the kitchen from the first floor, which enabled a second bathroom upstairs.  The adjoining room could either make a fourth bedroom with ensuite, or second reception room / work-from-home space.  Other works involved an updated central heating system with condensing boiler, new LED lights to the ground floor, new front door, and electric up-and-over garage door.        

The ground floor comprises a good size entrance hall with useful under-stairs storage and tiled flooring extending right the way through the kitchen/diner.  A door from the hallway leads to an integral garage to provide excellent storage and with combined laundry / utility area with space and plumbing washing machine, separate dryer or additional fridge or freezer.   

The first floor consists of a lovely, bright and spacious main living room (front aspect) again featuring a large expanse of windows with double concertina doors opening to a study / bedroom four with door to a good size bathroom.  Both rooms are laid with wood flooring.  The top floor provides landing with cupboard and a hatch giving access to the loft.  There are three well-presented bedrooms (two doubles and a good single) with the rear double providing built-in wardrobe.  All bedrooms are served by a smart re-fitted shower room with modern suite and tiling. 

Externally, the front garden has a herringbone brick-paved driveway and is well screened with established planting between neighbours.   To the rear there is a lovely sunny garden that enjoys excellent privacy and is laid with decking giving same level access from the kitchen.  In addition, there is a rear covered pergola structure with roof; brilliant for outdoor entertaining with potential for a bar area.  The garden enjoys external power points, water, mature plants and shrubs and useful rear pedestrian access. EPC C. 

Location: Spurfield forms part of the much-requested Hurst Park development built by Wates in the mid 1960's.  A large Tescos superstore with adjoining post office is located nearby.  The high streets of West and East Molesey are easily accessible with many excellent shops, restaurants and retailers. Bus routes nearby connect the larger towns of Walton and Kingston, whilst the village area of Bridge Road and Hampton Court Station (zone 6) are approx 1.3 miles away.

Follow The Property Jungle Library on Facebook Follow The Property Jungle Library on Instagram