Life Magazine

£650,000 Sold Subject to Contract

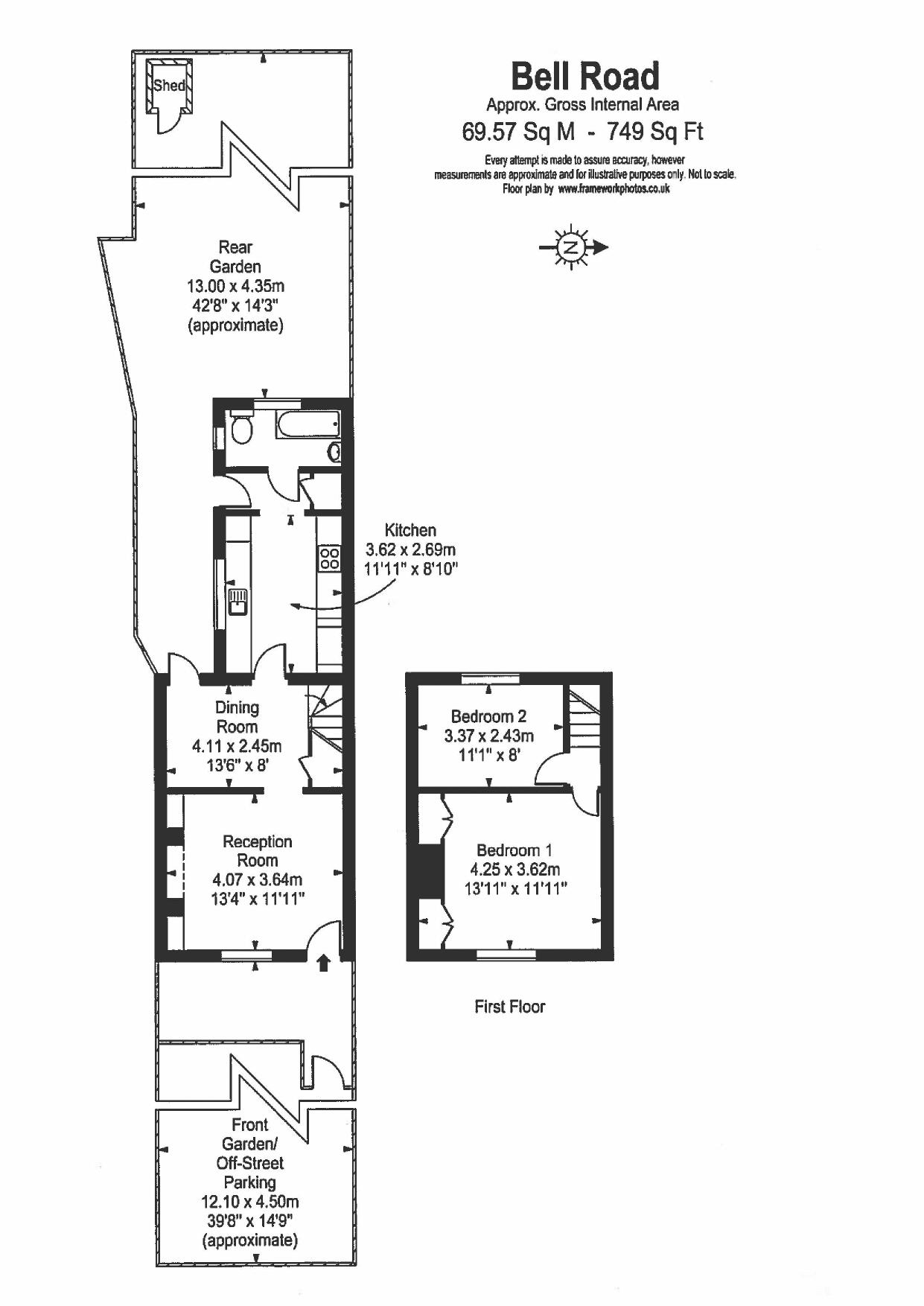
Bell Road, East Molesey

2 2 1

A pretty end of terrace cottage (dated to the late C18) sympathetically modernised by the current owner and is absolutely bursting with charm and character.  

It should be noted that the property is wider than others in the terrace.  Furthermore, it enjoys a favourable 'east to west' aspect with morning sunlight to the front and afternoon sunshine to a private rear garden of abt. 42 ft in depth.  It is a comparatively larger plot than typical cottages, with a good sized rear garden as well as a deep front driveway (approx. 40ft) to provide two off-street parking spaces in tandem. 

The overall character is immediately apparent on entry with features to include exposed ceiling beams, panelled doors with latches and a large open fireplace with wood burning stove (needs re-commissioning) to an inviting front sitting room.  Further accommodation includes a separate dining room with access to the garden, a modern and well fitted kitchen complete with a range of fitted Bosch appliances to include oven, gas hob and extraction unit, integrated dishwasher, and provides further space for a large American style fridge freezer, washing machine and tumble dryer.  To complete the ground floor there is a rear lobby with built-in storage and a stable door to the side return, and further door leads through to a double aspect bathroom recently updated with a white suite.  

Upstairs on the half landing is a ceiling hatch providing access to the loft space.  The principal bedroom is an excellent size (abt. 14 x 12ft / 4.25 x 3.62m)  with fitted wardrobes to alcoves, whilst the second bedroom is also a good double.  Other features include quality wool and seagrass carpets, and plantation shutters are fitted to the sitting room and principal bedroom. 

In addition, double-glazing was installed throughout the house (inc. new PVC stable door), new gutters, soffits and fascia board (fitted in 2021).  The hot water and central heating system (inc. new radiators) are operated by a quality Viessmann combi-boiler (installed Nov 2016).       

A low maintenance, part walled, rear garden is hard landscaped and also has the advantage of being particularly private and secluded. There is an upper and lower level patio, garden storage shed, external power, light and water tap.

Additional note.   Due to a current tenancy - vacant possession for sale completion is available for end of August 2025. 

Location:  Bell Road is one of the most historic parts of East Molesey forming part of the Old Town Conservation area.  The road houses the popular Bell Public House (circa. 1460) and the lovely St Mary's Church one end, and the far side a public path and footbridge leads to the Wilderness with lovely walks beside the River Mole.  The property itself enjoys a quiet and tranquil position with easy access to town centre shopping and amenities.  Hampton Court station (zone 6), beautiful riverside and the village area of Bridge Road is about half a mile away.

 

Follow The Property Jungle Library on Facebook Follow The Property Jungle Library on Instagram