Life Magazine

£392,000 Sold Subject to Contract

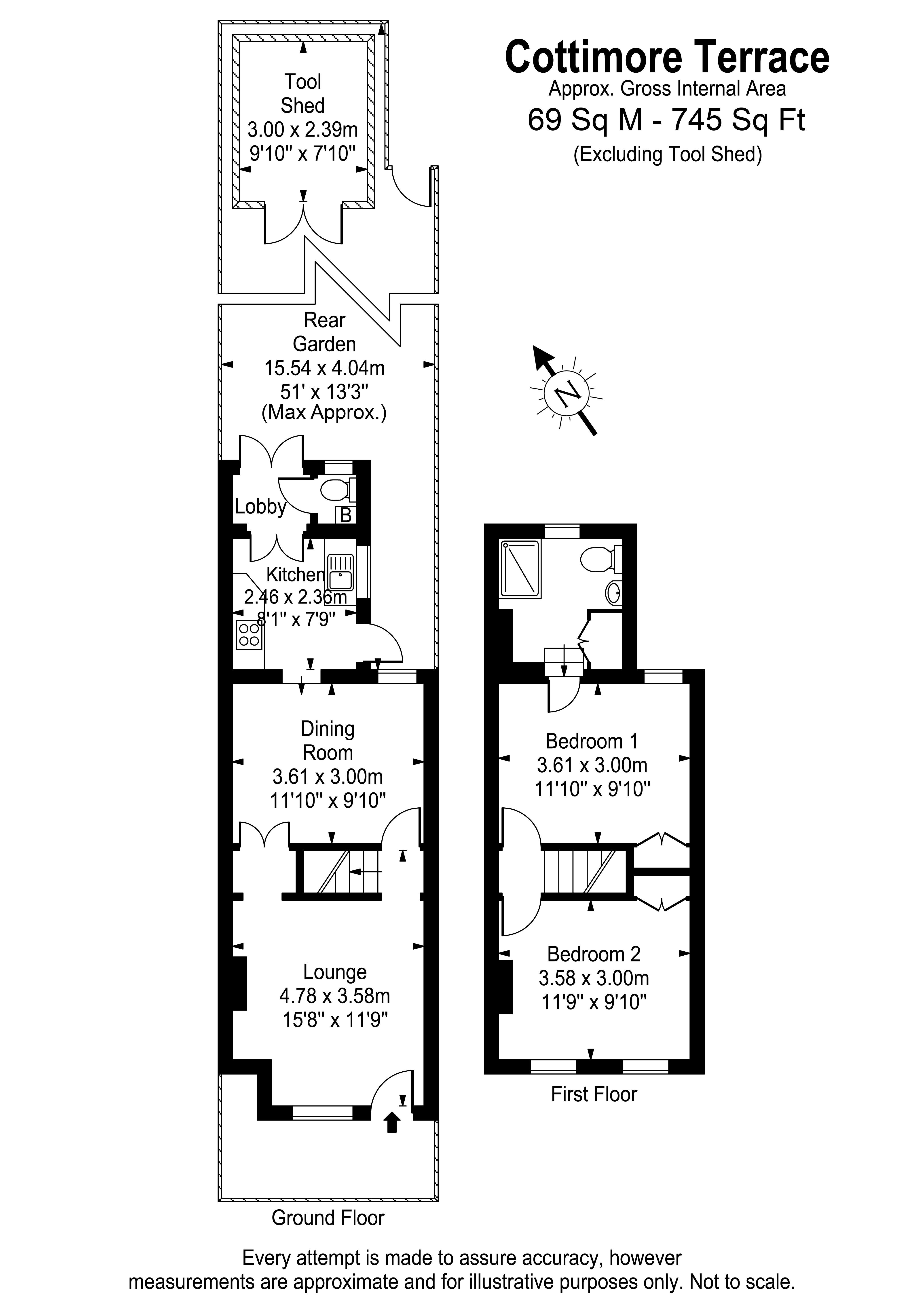
Cottimore Terrace, Walton-On-Thames

2 2 1

Key Features

  • Pretty Victorian Cottage
  • End of terrace
  • Quiet cul-de-sac
  • Two reception rooms
  • Kitchen | Downstairs W.C.
  • Two double bedrooms
  • Upstairs Shower room
  • Scope to improve 
  • Walled garden | Bike/Tool shed
  • Loft Convertible STPP

Miles & Bird are pleased to present this charming two double bedroom end of terrace cottage is tucked away in a quiet and private position at the end of a small cul-de-sac of similar period cottages. Offered with immediate vacant possession.

This pretty Victorian cottage benefits from all the trappings and charm one would expect of a lovely period property.  It should be noted that whilst presented in liveable condition with gas central heating (inc. modern boiler) and fully serviceable kitchen and upstairs shower room, there is scope to modernise and improve further.  For those seeking a longer-term project there is also scope to develop the roof into a further bedroom as seen with neighbouring properties; such works would require local authority consent. 

The accommodation comprises front reception room (lounge) with bay window, modern fireplace, alcove cabinet and shelving over.  Twin archways / doors lead to the dining room which is laid with wood style flooring extending through to both reception rooms.  The kitchen has a door to the side return and opens to a rear lobby with double doors to the garden and an adjacent toilet, housing a Glow-worm Flexicom 30cx condensing boiler.    

Upstairs there is a small half landing with hatch providing access to the loft space with pull-down loft ladder.  There are two double bedrooms (both providing over stairs wardrobes) and complete with original wood floor boards.  With a little sanding and treatment these would come up beautifully.  From the rear bedroom is access to a good size shower room fitted with a white suite and built-in airing cupboard. 

Outside the rear garden is low maintenance being paved, and walled to one side.  It is a good size for a cottage and features a large timber tool shed / workshop.  There is a water tap to the side return and useful rear access where the refuse, and recycle bins are kept.  

Location:   Cottimore Terrace is small T-shaped cul-de-sac amongst other period houses, and is ideally placed to utilise a raft of local amenities. Primary schooling, Terrace Road shops, Excel Leisure Centre (pool complex) and Walton Town Centre are all within easy reach. The Town / High Street is under half-mile away and houses The Heart Shopping Centre with many high street names and independent shops along with quality restaurants. The River Thames is nearby with the picturesque Thames Towpath giving access to neighbouring towns including Hampton Court. The train station is approx. 1.5 miles away with a direct line to London / Waterloo (circa 25 minutes).

Follow The Property Jungle Library on Facebook Follow The Property Jungle Library on Instagram