Life Magazine

£620,000 Sold Subject to Contract

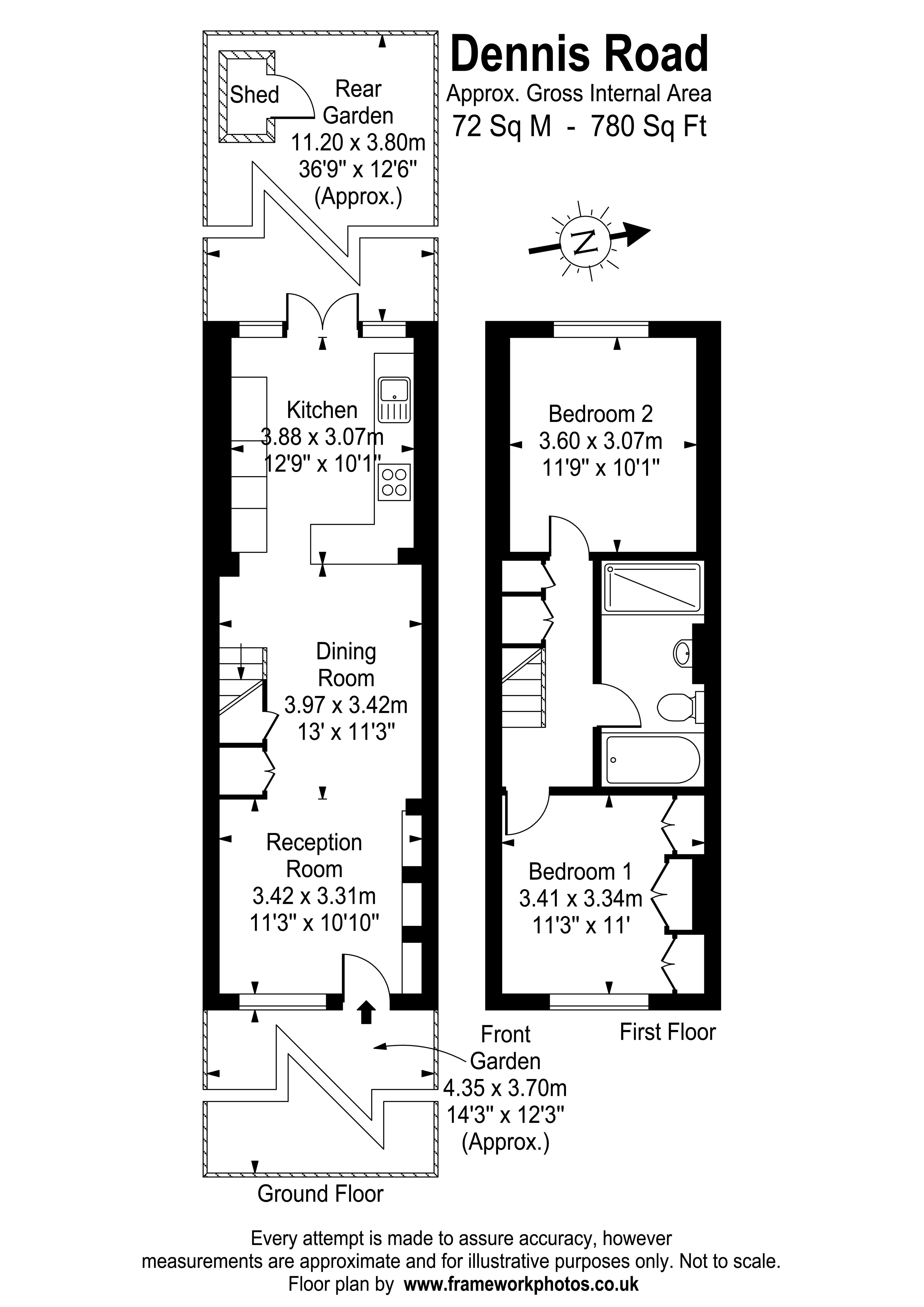
Dennis Road, East Molesey

2 2 1

Key Features

  • Popular East Molesey side road
  • Quality kitchen
  • Charming period cottage
  • Upstairs Bathroom
  • Extended & fully refurbished
  • Landscaped garden
  • OSP with car charge point
  • Bespoke storage
  • Wood burning stove
  • Wood floors

Miles & Bird are delighted to offer this tastefully refurbished two double bedroom Victorian cottage, situated in a highly regarded East Molesey Village side road, complimented by an impressive landscaped garden, and private off-street parking.

Comprehensively extended, refurbished, and remodelled (May 2019) this stunning period cottage is a true gem, offering a perfect blend of modern convenience and traditional charm. Upon entering, you'll be impressed by the immaculate condition and well planned open spaces. Considerable attention to detail is evident throughout.  The living room exudes warmth and elegance, boasting plantation shutters, wood burning stove, and beautiful wooden floorboards that extend right through to the dining and kitchen areas.

Bespoke cabinetry provides ample storage solutions throughout, keeping the space clutter-free and organised. The dining area is a delightful spot, whether you're enjoying a cosy breakfast or hosting more formal gatherings.  The kitchen is a chef's dream, thoughtfully designed with excellent storage options, an induction hob, integrated cooker, microwave, and appliances.  In addition, there is underfloor heating, and aluminium powder coated double doors with matching side windows which flood the area with natural light and provide a seamless connection to an incredibly stylish garden. 
 
Moving upstairs, a good size landing designed with a sun-pipe for distribution of natural light, also provides built-in storage and access to the loft.  The front double bedroom features fully fitted hand-crafted wardrobes to provide exceptionally useful storage, the window is fitted with plantation shutters.  A double-height rear extension has resulted in an excellent-sized double bedroom to the rear, currently set up as a work-from-home office. This flexible space also includes a Kingsize sofa bed and plantation shutters, making it versatile and ideal for guests as well.  To complete this floor the stylish bathroom, with underfloor heating, is a true oasis, equipped with both a bath and a large separate walk-in shower, while a further sun-pipe also brings natural light. The dimmable lights and Sonos speakers in the ceiling create a relaxing atmosphere, perfect for invigorating morning showers or unwinding with a soothing soak after a long day.

Externally the contemporary outdoor space is not only visually appealing but also offers a sense of privacy and seclusion with dedicated sitting areas, set amongst a variety of architectural plants and trees.  The garden is west facing, there is power, outside lights, water and shed.  The front garden is paved to provide driveway parking with an electric car charging point (7.2 kW EV port).
 
Location: Dennis Road is a quiet residential side street within short walking distance of East Molesey High Street, Hampton Court railway station, village & the River Thames.  The local area has an abundance of local amenities, enjoys superb schooling options as well as many open acres of parkland found in Hurst Park, two Royal Parks (Bushy and Home) and Molesey Heath nature reserve.

Follow The Property Jungle Library on Facebook Follow The Property Jungle Library on Instagram