Life Magazine

£490,000 Under Offer

32 Twickenham Road, Teddington

2 1 2

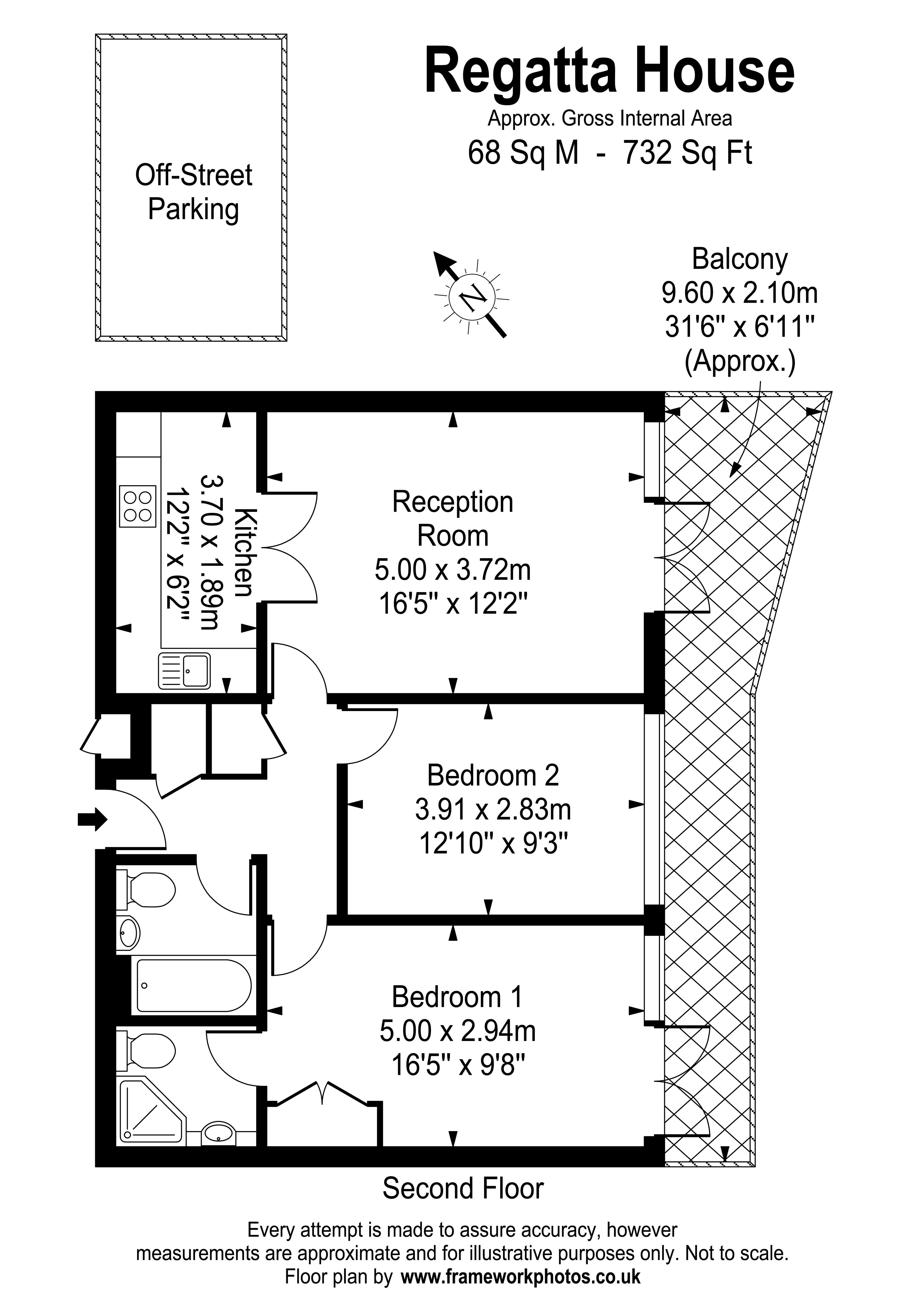
A two bedroom, two-bathroom, second floor (lift serviced) apartment with secure parking and a sunny aspect balcony enjoying side views towards the River Thames and Teddington Lock.

The Wharf Riverside Development is an established part of the Teddington landscape. It consists of three apartment buildings; Regatta House, Fairmile House and Admiral House, a superb riverside restaurant (The Wharf) which is popular with residents and locals alike, and a RNLI boat station.

The apartment for-sale is located in Regatta House - left of the three buildings from the road. Each block is separately managed. There is a concierge service with CCTV system - office located within Admiral House - as well as an onsite gym/fitness centre exclusively for residents which is located on the lower ground floor of Regatta House. Within the communal entrance you will find a foyer/guest waiting area, as well as secure individual mail boxes for each apartment. A lift connects all floors including the parking areas which are accessed via swipe fob security. This flat comes with an outside gated parking space.  In addition, there are five visitor parking bays along the wall of the restaurant car park, opposite Fairmile House. 

Internally, the flat has good light on this side of the building and a comfortable overall floor space of approx. 68 sqm / 732 sq ft., as illustrated on the floor plan provided.  The main bedroom and living room both enjoy access to the balcony — approx. 9.6m / 31ft in length.  There is a generous size living room with plenty of space for sofas and a dining table, with twin 'part glazed' doors opening to the kitchen.  The kitchen is well equipped with a full range of appliances; fridge freezer, washer dryer, dishwasher, electric hob & fan oven and integrated microwave.  The main bedroom has a built-in wardrobe, and an ensuite shower room, whilst there is a separate bathroom supporting bedroom two.  A wet central heating system is powered by an electric boiler.  EPC C.  Council Tax Band F.

Additional note. The balcony decking is in the process of being replaced and is therefore not currently accessible.  

Tenure: Leasehold, 999 years from the 24 June 1996.
Service Charge & Reserve Fund: 01/01/2026 to 31/12/2026 = £4,137.44
Ground Rent: £350 PA

Follow The Property Jungle Library on Facebook Follow The Property Jungle Library on Instagram