Life Magazine

£375,000 Under Offer

Hampton Court Road, East Molesey

1 1 1

A comparatively good size one bedroom ground floor apartment with own private entrance, just a 'stones throw' from historic Hampton Court Palace, station and the village area of Bridge Road, including stunning riverside gardens and the advantage of secure gated parking to the rear.

Rotary Court, once owned by the Crown Estate, is a fine example of an early Victorian building, sympathetically converted into private apartments in 2008. This apartment enjoys its own entrance to the rear of the building - a private and secure area perfect for enjoying a morning coffee. There is a lovely community among the residents, from vibrant friendly retirees to lovely younger couples and singles, so you will enjoy a warm welcome, just as the current owner has enjoyed for the last 12 years.  Additionally, being in the London Borough of Richmond Upon Thames, advantages currently include the Freedom Pass. 

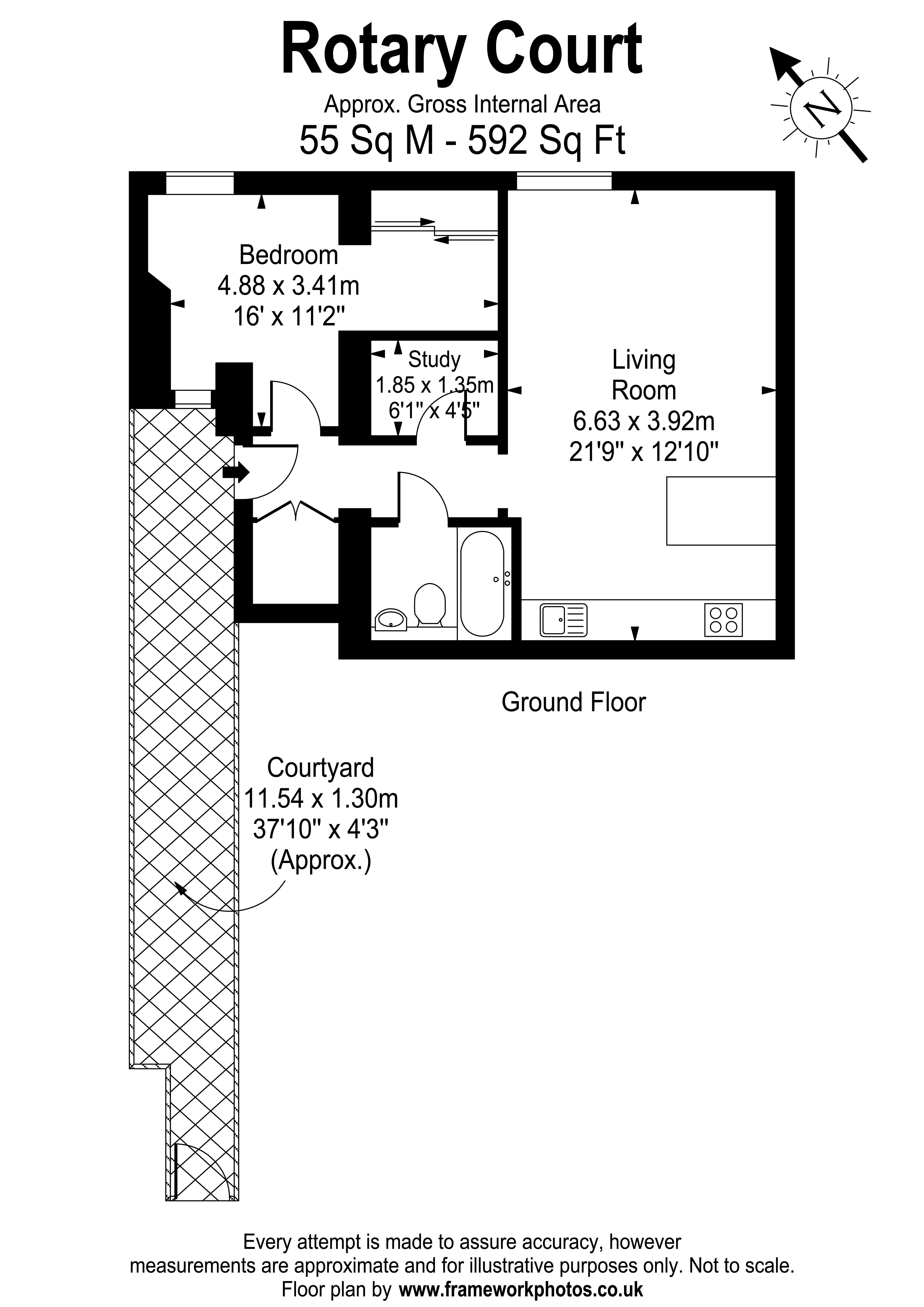
Upon entering the flat there is a good feeling of space to the entrance hall with double storage cupboard immediately on your right.  Further along on the left is a small internal study space and combined coats/shoe cupboard, or otherwise, a deep closet for those wanting surplus storage.  The open plan kitchen / living room with wood flooring is a generous space and the modern kitchen has all the necessary appliances as well as a peninsula unit as a breakfast / dining space with stools.  

The bedroom enjoys a side dressing area with full width built-in wardrobe, and to complete the accommodation you'll find a modern fitted bathroom with separate shower over the bath.  The property has been freshly decorated throughout, has newly installed heaters, and also new quality timber framed double glazed sash window to the living room.          

Externally the stunning grounds sweep down to the River Thames with seating to enjoy the water views and relax at the end of the day, if you love a garden and have no time for gardening then this is for you. If you are looking for somewhere where you can enjoy open spaces on your doorstep this is the perfect location with Bushy and Hurst Parks , wonderful riverside walking paths and Hampton Court Golf Course nearby. A few of the residents are also keen runners and one an ultra marathon runner, so perfect training partners at the ready. With a secure bike store, this is also the perfect place for you as you can access the cycle routes around Surrey including the infamous Box Hill. Within 5 minutes walk you also have the East Molesey Cricket Club and Molesey Row Club, perfect for enjoying the activities as a spectator or a participant, plus the Real Tennis Club at Hampton Court Palace and of course the Thames Motor Yacht Club next door, that you can join as a social member even if you don't own your own boat yet !!

Tenure: We are informed there is a long lease of 108 years
Ground Rent: £350 PA
Service Charge & Sink Fund: £3,070.48 PA

Location: Rotary Court is an elegant period building, opposite Hampton Court Green, forming an historic landscape of architecturally important buildings (The Courthouse, Paper House and Faraday House) adjacent to the River Thames; these buildings were once occupied by highly acclaimed figures such as Sir Christopher Wren and Michael Faraday. Major bus routes are located close by with direct bus services to Richmond, Kew, Kingston and Heathrow airport whilst the station - just across the bridge - connects Waterloo in approx. 35 minutes. Wonderful riverside towpath walks are found nearby, leading to Hampton Wick, Kingston and Richmond, and in the opposite direction towards Walton Upon Thames. A short walk away you will find Bridge Road, affectionately known as Hampton Court Village. Here the vibrant street scene provides numerous, pubs bars, cafes and restaurants (28 at the last count) as well as quality independent stores, art galleries, and antique shops, perfect for evening and weekends wondering.

Follow The Property Jungle Library on Facebook Follow The Property Jungle Library on Instagram