Life Magazine

£1,295,000 For Sale

Waldegrave Park, Twickenham

4 2 2

FIRST VIEWINGS Thursday 12th February & Saturday 14th February. A traditional bay-fronted semi-detached family home with driveway parking, useful side access and rear garage, situated in wide tree-lined road on the border of Strawberry Hill and Teddington.  

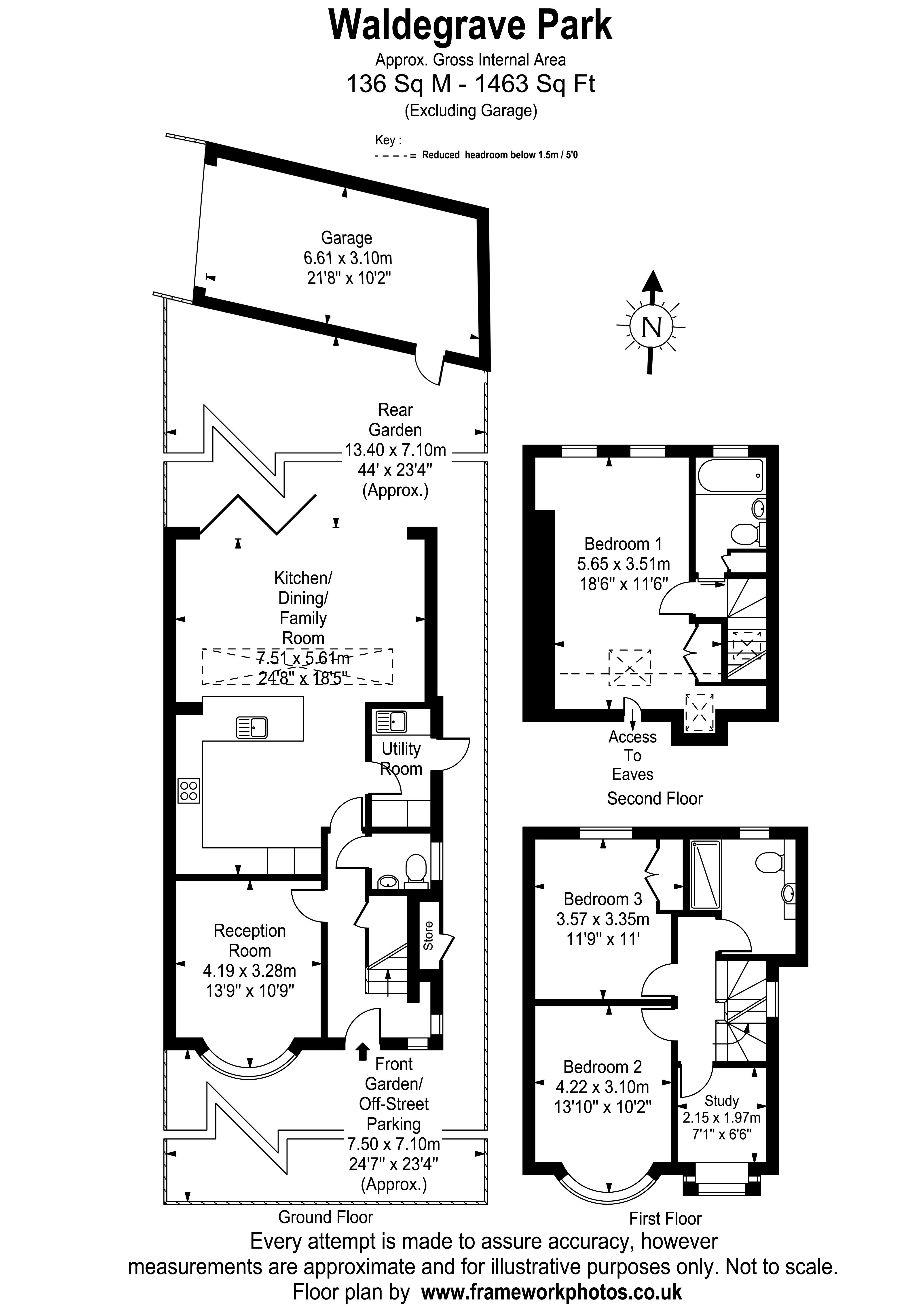
Extended and remodelled by the current owners to provide comfortable, well balanced family accommodation across three floors (GIA approx. 136 sqm / 1463 sqft).  The current owners have thoroughly enjoyed their tenure here, residing for over 20 years, grown-up children have departed and due to a relocation, the property is now being sold.  

An established, part walled, front garden has a gravelled driveway with comfortable parking for a large family car.  The pathway leads up to a distinctive front entrance with stepped brickwork to a covered storm porch – a lovely architectural feature reminiscent of the 1930s period.  

It's all about the detail.  Stepping inside the house what immediately stands out is a small but not insignificant side extension allowing for an attractive corner window and a nook with space for shoes and coats, as well as a slightly wider than standard under stair cloakroom / W.C.  The ground floor space is simply good design and typifies a layout for modern living that maximises both space and light, alongside excellent interaction with the garden.  

This entails a separate front snug / TV room with bay window, and what use to be a back reception room is now occupied by a spacious, open plan, kitchen / dining / family room.  The kitchen is fitted with a marble worktop & upstands, under counter lights, integrated appliances (fridge/freezer, Neff oven, electric hob and extractor) and a highly sociable peninsula breakfast bar beneath a contemporary style atrium rooflight.  The kitchen / dining / family area features engineered wood flooring and is fully immersive with the back garden due the large expanse of glass via 'full width' 'floor-to-ceiling' folding doors.   To complete the ground floor there is a highly useful utility room with door to side access. 

Upstairs, at first floor level is a side window to the landing.  There are two doubles and a single bedroom currently set up as a study on this floor, all being served by the main family bathroom redesigned with a large walk-in shower enclosure.  The second (top) floor provides a further double bedroom with built-in wardrobe and access to eaves storage, whilst a modern fitted bathroom is independently accessed from the half landing.  

Outside, the rear family room extension is clad with cedar wood and opens out onto same-level decking.  It is extensively planted with mature plants, trees, and shrubs with pathway leading down to the garage (6.61 x 3.10m / 21'8" x 10'2")  with power & light.  There are up & down lights to the extension with water tap and external store to the side access.  

Location:  Following the accolade of Teddington being awarded Best Town in London in 2021 (The Times) the local area once again stands at the pinnacle with Richmond-Upon-Thames voted as No.1 London Borough (Telegraph, 2025) based on data driven analysis of 34 categories.  Green open spaces at Bushy, Home and Richmond Parks, Marble Hill Park, and also the delightful Radnor Gardens on the river (with 'Parsnips in the park' cafe) and the charming restaurants and riverside pubs and walks. Commuter links are excellent with a choice of two stations providing direct links to Waterloo, frequent bus routes and easy access to the M3/M25 and Heathrow Airport. It is perfect for family life with an abundance of recreational facilities, fabulous golf courses, riding stables and local sports teams. The renowned Lensbury Club is easily accessible, providing an extensive range of sailing and leisure facilities and some excellent schools are nearby, including Waldegrave School, St Catherine’s, Radnor House and Newland House.

 

Follow The Property Jungle Library on Facebook Follow The Property Jungle Library on Instagram