Life Magazine

£715,000 Sold Subject to Contract

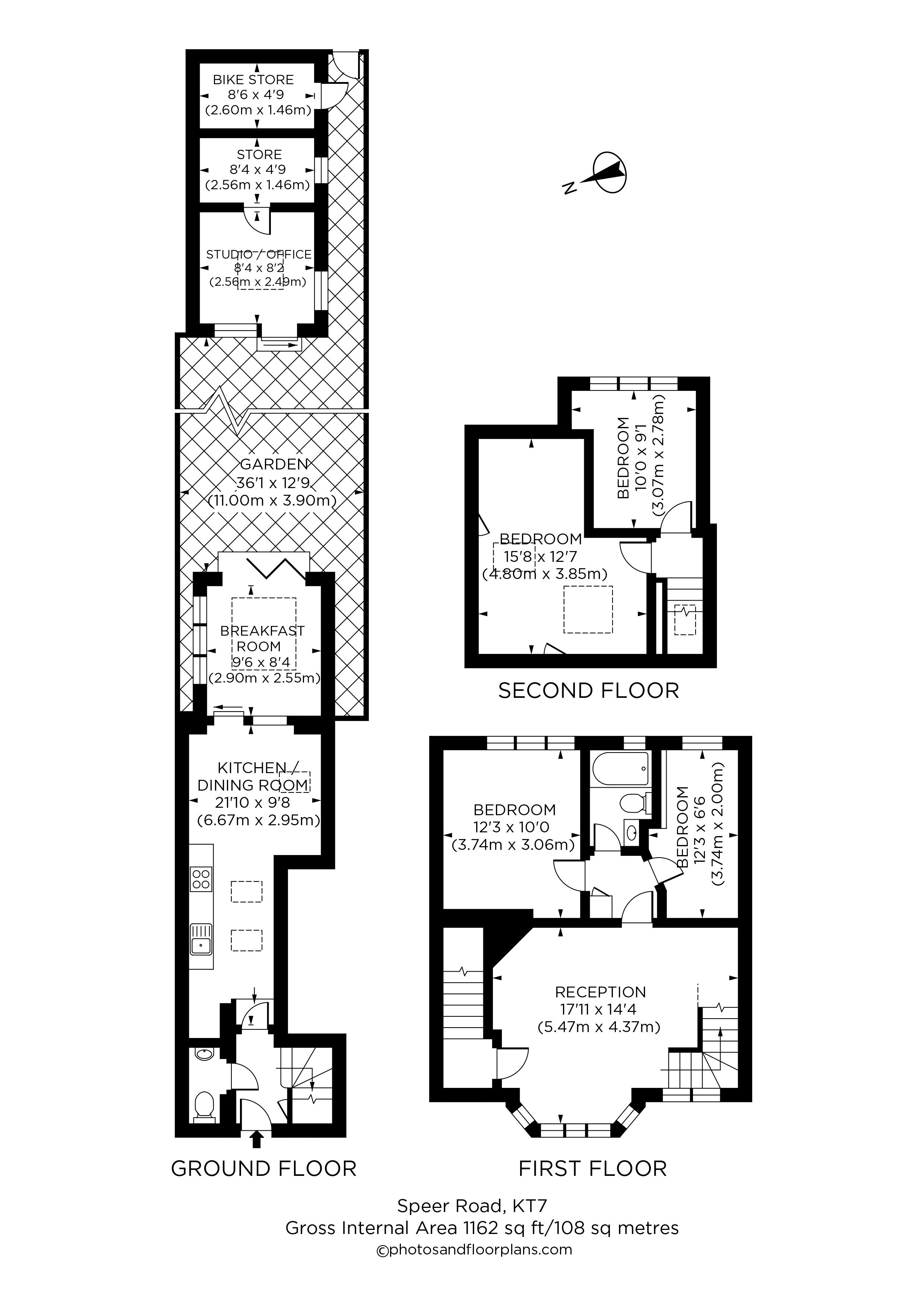
Speer Road, Thames Ditton

4 3 1

A superb four bedroom home with private landscaped garden housing a quality outbuilding comprising fully insulated garden room / office - all situated in a highly sought after Thames Ditton side road with easy access to the village, beautiful riverside and mainline station.

For those searching for a lovely 4-bedroom property in fully modernised condition with private outside space - yet the house prices continue to prove a jump too far - then this is the perfect home for you.

Since our clients acquired the property nearly four years ago, this wonderful home has been comprehensively refurbished and extended. It is technically a maisonette but feels more like a house with private & landscaped front garden, leading to its own entrance & front door, together with same level back garden access leading out from an extended kitchen.  

Walking into the property you are greeted by an entrance hall with newly added guest cloak W.C off to the left.  Ahead you will find a stunning and fully integrated kitchen/diner with twin sky lights to a pitched roof.  This in turn, opens up into a new extension - modestly described by the owners as their bar area!  This amazing space enjoys a double aspect with retractable bi-fold doors and windows together with lantern style skylight.    

Moving on up, the living room takes centre stage and is the true the heart of the home. Superbly decorated, there is an immediate airy and homely atmosphere aided by large windows (inc. plantation shutters) allowing natural light to pour in. The living room also comes with a functioning fireplace and wood burner and stripped wood floorboards. This floor also provides large double and good single bedrooms, separated by the bathroom which has been completely renewed.  On the top floor, are a two further generous bedroom; the bigger of the two rooms gives access to copious eaves storage.   There is actually scope to develop this floor (stpp) further, if necessary.  

Outside, the garden spaces are impressive leading to the cedar wood clad garden office (or gym / Peloton space for fitness enthusiasts). Beyond you will find a bike/store and separate log store/plant room housing battery back-up for the Solar Panels. Of particular note - the vehicular service lane behind is tarmacked and in well maintained condition. 

Tenure: Share of Freehold, held on on a long lease of 199 years (balance 127 years)
Ground rent:  £100 pa.  Rising to £125 pa - as of 2050

Location:  As for location, this property also offers multiple benefits such as being a short walk away from Thames Ditton station which offers direct routes into central London via London Waterloo.  The local village is also easily accessible and is well supported by the local community with a bi-monthly craft/farmers market.  Also being in close proximity to Hampton Court Palace (& village) and Royal Bushy Park, and the town centres of both Surbiton and Kingston upon Thames.  These combine to provide some of the finest shopping, restaurants and outdoor activities to be found anywhere.  This road also falls within the catchment of outstanding schools, colleges and nurseries catering for all ages. 

 

Follow The Property Jungle Library on Facebook Follow The Property Jungle Library on Instagram