Life Magazine

£650,000 Under Offer

Dennis Road, East Molesey

2 2 1

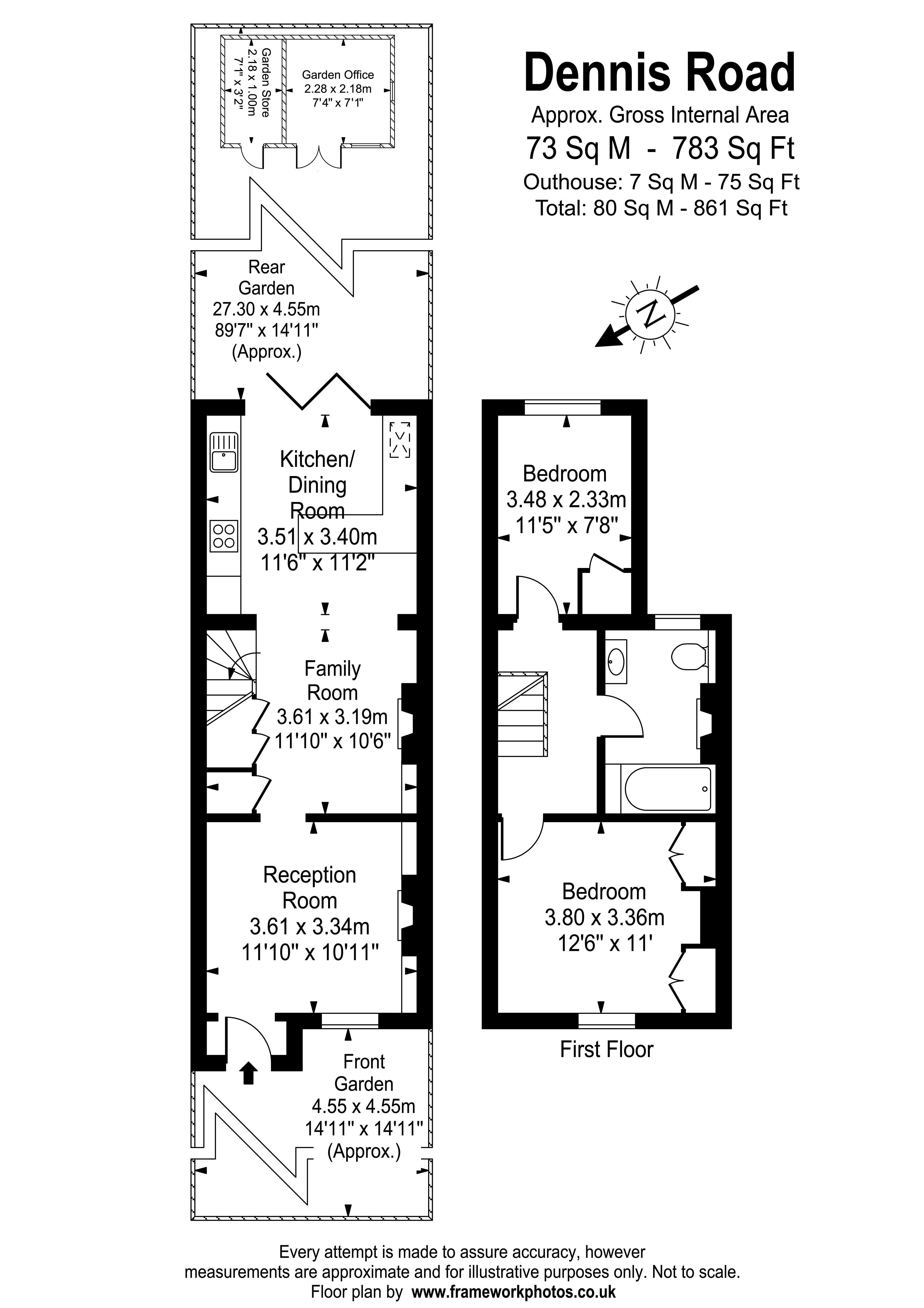
A quality two double bedroom Victorian cottage skilfully extended and full of character to provide a modern kitchen/breakfast/family room with bi-fold doors opening to an impressive 90ft garden complete with fully insulated garden office and adjoining store.  

This delightful character property has been completely modernised throughout.  Charming period features are in abundance to include traditional cast iron fireplaces to both receptions rooms as well as the upstairs bathroom, stripped wooden doors, plantation shutters and original sanded floor boards.  Other notable works during the last 10 years include a side return extension with skylight window, re-plastering and decorations to all rooms, new carpets, a full re-wire and installation of a new heating system and boiler.

The accommodation comprises a front entrance porch with space for coats and shoes.  This in turn, opens to a cosy front reception room with built-in alcove shelving and cupboards.  The rear kitchen / breakfast / family room is a lovely open space bathed in natural light, again with cabinetry and alcove shelving and bespoke under-stair storage solutions.  The stylish kitchen is fitted with modern white units complete with composite worktops and incorporating a range of integrated appliances to include; washing machine, separate dryer, fridge / freezer, Bosch double oven, high level microwave and under counter drinks fridge. 

Upstairs, a charming galleried landing leads to a double bedroom with built-in twin double wardrobes, whilst the rear double bedroom also provides storage with combined airing cupboard.  The bathroom is larger than average and beautifully appointed with quality sanitary ware, original floorboards, fireplace, and a suspended rainfall shower over the bath. 

Externally, both gardens are landscaped.  The front garden laid with black slate flagstone pathway, enclosed by white picket fence and gate.  To the rear a sunny garden with superb privacy and enjoying 'same level' access to a Mediterranean style garden with decking leading to a York stone terrace.  Beyond you will find an established rear garden mainly laid to lawn with mature boarders taking one down to the fully insulted garden room currently set-up as a home office, but would make a great gym, man cave or music studio.  Exterior power and water.  

Location:  Dennis Road is a sought-after residential side road in East Molesey village, within easy access of local shops and schools. Bridge Road (referred to as Hampton Court Village) with its numerous independent cafés, restaurants, boutiques and antique shops are all within easy walking distance (0.7miles), as is Hampton Court Station (TFL ZONE 6, connecting to London Waterloo). Bus terminals at Hampton Court station / Green connects Heathrow, Twickenham, Richmond and Kew, Kingston and Staines.  Kingston-Upon-Thames with its renowned and diverse shopping facilities is also easily accessible.  Molesey is also serviced by a library as well as health/fitness, rowing and cricket clubs amongst others.

Follow The Property Jungle Library on Facebook Follow The Property Jungle Library on Instagram