Life Magazine

£900,000 Sold Subject to Contract

Wick Road, Teddington

3 2 1

Key Features

  • Character Property
  • Tall ceilings
  • Working Fireplaces
  • Scope to Enlarge STPP
  • Close to Good Schools
  • Sunny Garden
  • Hampton Wick Mainline Station
  • Popular Sideroad


Miles & Bird Estate Agents are proud to present this traditional bay fronted Victorian property in a popular side road location - close to Hampton Wick station and Langdon & Royal Bushy Parks - with high ceilings, working fireplace and a sunny private rear garden.   

 

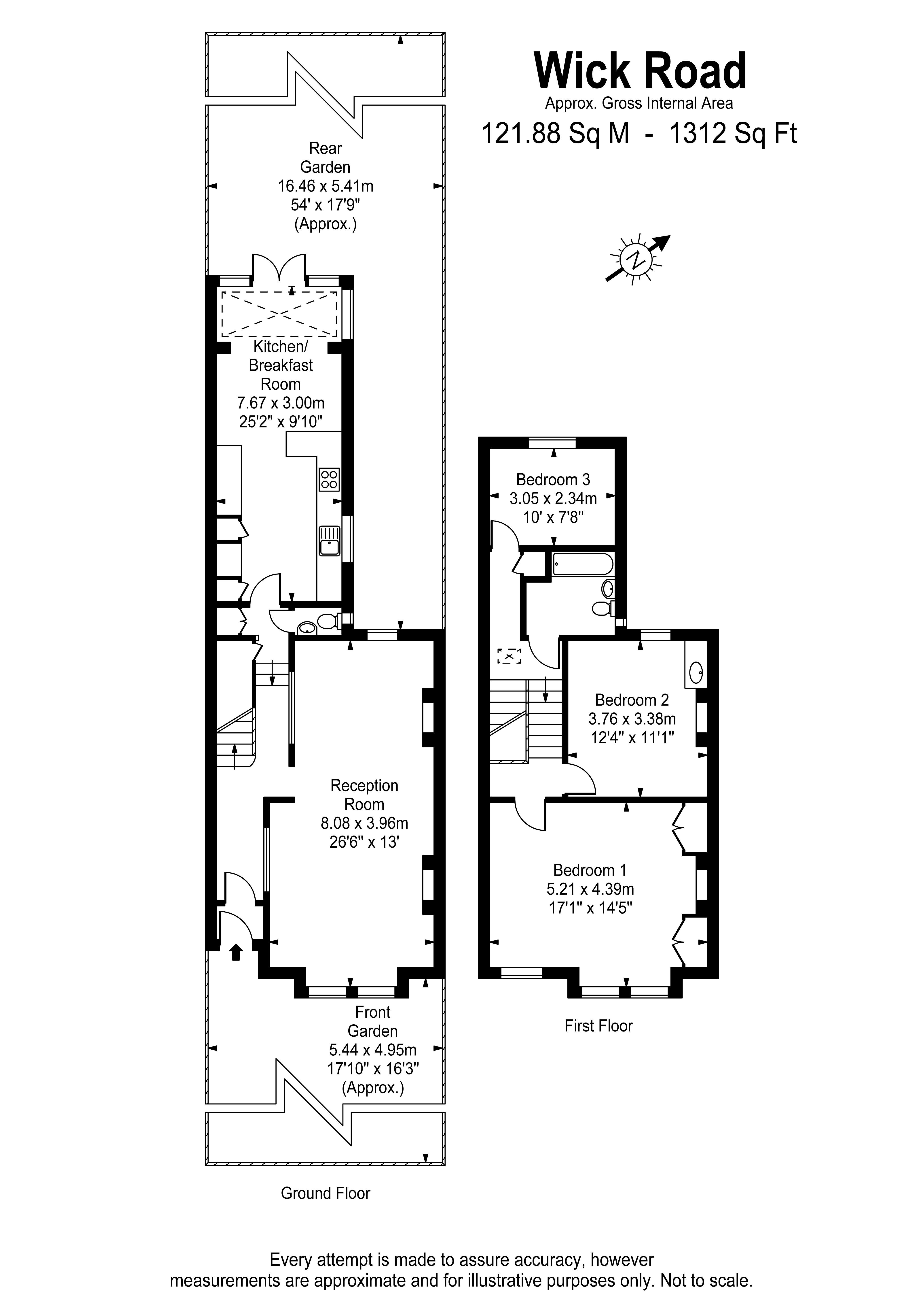
This charming Victorian property boasts attractive "London stock" brickwork, and forms part a delightful terrace of seven houses all enjoying established front gardens with mature trees and hedges.  Internally the floor area already extends to approx. 1,350 sqft / 125 sqm, to represent the natural footprint of the original house, so it could be enlarged quite considerably with a loft extension (creating two further bedrooms and bathroom).  There is also plenty of space to develop the ground floor, both additions would increase the total floor area to approx. 1,900 sqft / 176 sqm.  This work would of course require local authority consent, but likely granted under simple permitted development. 

 

The ground floor provides a comfortable open plan feel with partial "wall openings" for a good visual effect and distribution of light.  The accommodation consists of an elegant double reception room with high ceiling (9' 7" / 2.9m in height) and features two limestone fireplaces, picture rails and cornicing, and is laid with light Oak flooring that also extends through the entrance hall.  An inner lobby provides understairs storage, further cloaks cupboard and a separate guest W/C with wash basin.  To complete the ground floor an extended kitchen / breakfast room measuring over 25 ft in length, has lots of storage, and provides space for all necessary appliances.  A new Vaillant boiler was installed September 2016.  

 

The first floor, again with good ceiling height, features an interesting split-level landing with large skylight window.  The upper landing opens to two double bedrooms, the main bedroom with a lovely cast iron fireplace, the room measuring a sizeable 17' x 14'.  This room could easily be divided to add a bathroom, study or nursery (if desired) and would still be left with a good double bedroom.  The rooms features a lovely window seat to the bay and built-in alcove wardrobes.  On the lower landing is access to a good size third bedroom, airing cupboard, and family bathroom.  

 

Externally the gardens are well stocked, the rear garden has an Indian sandstone patio with the remainder being lawned.  With its westerly aspect the patio is a good space to catch late afternoon early evening sunset.  External light over the patio, water tap and two timber storage sheds are located down the side return.  There is also useful rear pedestrian access.         

Follow The Property Jungle Library on Facebook Follow The Property Jungle Library on Instagram