Life Magazine

£750,000 Sold Subject to Contract

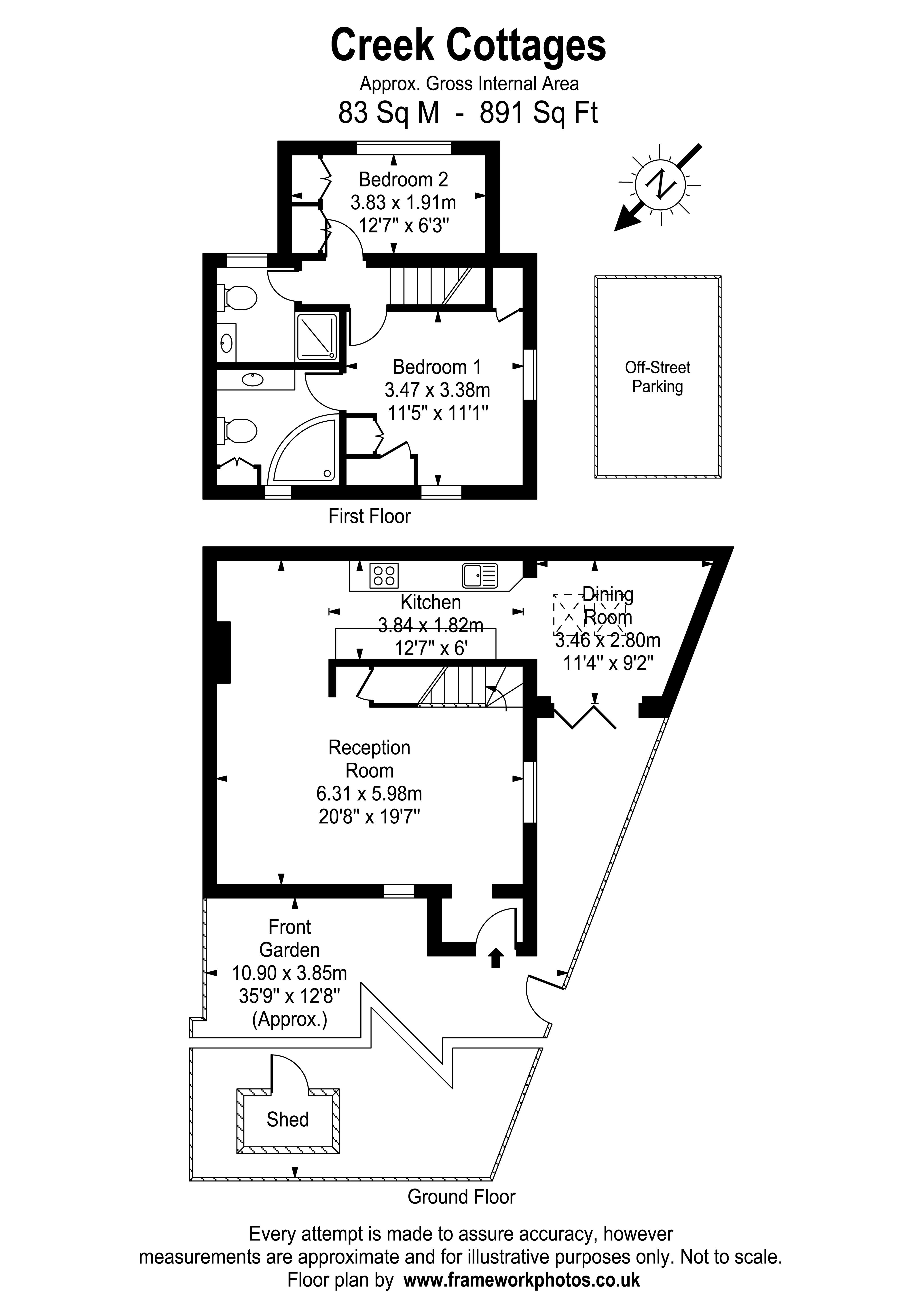
Creek Cottages, Creek Road, East Molesey

2 2 2

Miles & Bird are delighted to offer this charming two bedroom, two bathroom, Victorian character property (c.1890) situated in the heart of Hampton Court with pretty courtyard gardens and private parking.

This extended period property is tucked away in a private and secluded spot off Chatter Alley, just moments from Hampton Court Station, beautiful riverside and the village area of Bridge Road, and is available immediately with no onward chain.

The property is approached via an attractive pitched roof entrance with Gothic style front door opening to an inner lobby providing space for coats and shoes. The ground floor living space is particularly flexible with a generous double aspect sitting room which flows nicely into a galley style kitchen with space for all necessary appliances. The kitchen, in turn, opens into a lovely dining room extension (extended by our clients in 2014) with vaulted ceiling incorporating twin Velux windows, exposed brick feature wall, and bi-fold doors out to a side courtyard area.

Upstairs, the twin aspect principal bedroom provides built-in over stairs cupboard, as well as a separate wardrobe, opening to a spacious ensuite bathroom with jacuzzi bath. The second bedroom also provides built-in double wardrobe and is further supported by a separate shower room with plenty of storage.  Here, is access to the loft with an extendable pull-down ladder.  The attic space is centrally boarded and with light.   

Outside, the pretty courtyard garden is especially private for such a central location and well stocked with mature plants and climbers.  A useful tool shed provides power and light.   There is a parking space by deed in the adjacent gravelled parking area between Creek Cottages and Creek Road.  

Early viewing is recommended with the vendors sole agent.  

Location:  Forming part of the (Kent Town) Conservation area amongst some of the most desirable period properties in local area.  Superb independent retailers, pavement cafes and restaurants are all on the doorstep with Hampton Court station and beautiful stretches of the River Thames are less than 2 minutes' walk away.            

  

 

Follow The Property Jungle Library on Facebook Follow The Property Jungle Library on Instagram